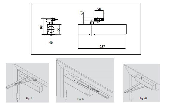
Description
Overhead rack & pinion delayed action door closer. Adjustable closing force (size 1-6). Fig 1/61/66. Closer in only one construction size. Optical size indicator (EP-patent). Backcheck and thermo-constant closing speed adjustable at front. Latching action adjusted via link arm. Safety valve in open and close direction. Includes PA bracket. Grey Finish.






