Description
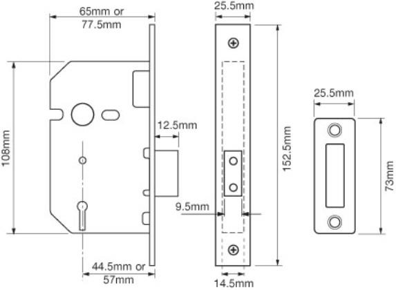
3 Lever Large Case Mortice Deadlock (2.5).
Suits wooden doors hinged on the left or right and requiring key operation only. Deadbolt locked or unlocked by key from either side. Made in the U.K.
Satin Finish.
This item is available whilst stocks last. Please contact us for availability of additional stock.





