Description
2203 – 3 Lever Sashlock
Application
For timber doors hinged on the left or right
Suitable for doors up to 54mm thick
Specification
Easily reversible radius latch that uses the unique UNION SwitchLatch technology, No tools are needed, its Time saving and Simple
Anti rattle adjustable strike for on site fine tuning
Radius plastic splinter guard for easy installation and a professional finish
Anti-saw security features for resistance against attack
Chamfered bolt design increases the performance of the lock under side load testing.
Radius inner forend for ease of installation
Deadbolt locked or unlocked by the key from either side
14mm deadbolt for secure positive deadlocking
2203S can be keyed alike with 2103S
Can be installed in the many UK mortices without the need for additional carpentry or spoiling the edge of the door
Hardened steel pins provide resistance to attack from sawing
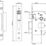
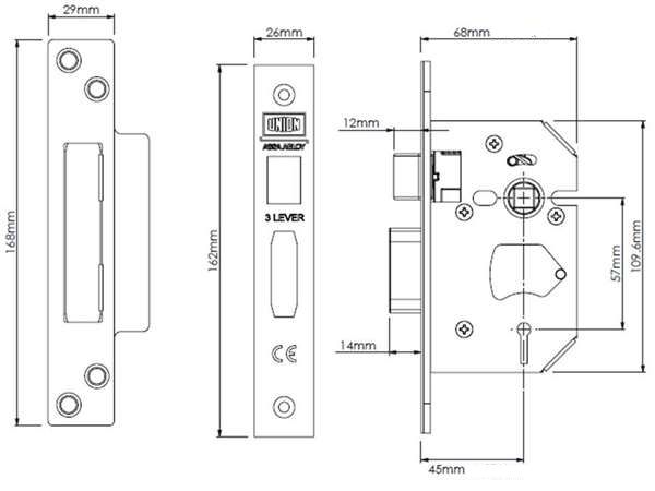
Case Size: 68mm (2.5in)
Backset: 45mm
Case: Steel, red powder coat
Forend: Stainless steel
Striking Plate: Finished to match forend
Faceplate: Supplied with square faceplate which covers a radius inner forend
Deadbolt: Zinc with hardened steel rollers
Latch Bolt: Zinc
Follower: Sintered Steel
Rebate Kit: 2200REB 13mm (0.5in)
Supplied with 2 steel nickel plated keys
Finish: SS – Satin Stainless Steel finish
StandardsTested to BS EN 12209:2003






