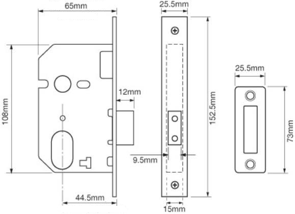
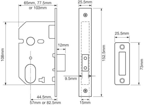
Description
Oval Profile Mortice Deadlock 63mm.
Suits wooden doors hinged on the left or right.
Requires Oval cylinder to operate.
Deadbolt locked or unlocked by cylinder key or cylinder turn. Made in the U.K.
Finish: Polished Brass.
This item is available whilst stocks last. Please contact us for availability of additional stock.



