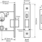
Description
Oval profile mortice nightlatch (2.1/2).
Latchbolt withdrawn by cylinder key from outside. Latchbolt withdrawn by separate turn snib from inside (i.e. UNI5203). Bolt held in the withdrawn position by use of optional snib in the forend.
Satin Finish.



